過濾篩是一種移動方便,體積小,噪聲低的小型好色先生免费下载分機,它是一種集粉粒分級,液體過濾為一體的單層篩。適用於大顆粒含量少的粉末篩分與漿液過濾。
體積小,不占地,結構簡單,免維修。
單層篩網容易清理,上端投料下端出料,十分方便。
一鍵式開關,控製簡單
一般配備小推車,移動方便
不鏽鋼材料表麵光滑,易於清洗和維護,延長設備的使用壽命
篩網具有精細的篩孔,可以根據需要選擇不同的篩孔尺寸,實現精細的過濾效果。
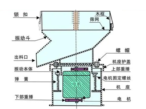
450型過濾篩是采用新型立式振動電機為振動源,立式振動電機上、下端裝有偏心重錘, 可產生水平、垂直、傾斜的三次元運動,激振力通過接料盤傳遞到篩框及物料上以達到優良分級。通過調節上、下偏心重錘的相位角,可改變物料在篩麵上的運動軌跡,保證物料充分分級。



| 型號 | 篩框直徑 | 頻率 | 尺寸 | 功率 | 電壓 | 重量 |
| 450 | 400mm | 1460times/min | 500*450*600 | 0.18kw | 380V | 40kg |

國家專利產品
CE認證
知識產權認證
質量體係認證
省著名商標
環保認證
曾獲省/市高新技術企業
省/市科技進步獎
省/市誠信企業等榮譽

三十年專注於精細化粉體好色先生视频播放器的製造,使得好色先生污视频積累了大量的生產和服務經驗,也為好色先生污视频更多客戶,解決了粉體加工的難題。

我公司將創新視為公司發展的生命之源,迄今已獲得40多項國內及國際專利,很多類型的產品一機多項專利。

公司引進多套先進設備,使我公司造出來的好色先生视频播放器重量減輕且承載力更強,運行更加穩定、節能明顯的同時又提高了生產效率。

我司專業承接精細粉體加工生產線的設計與生產項目,從破碎、篩分、輸送、給料、混合到包裝,為您提供一站式服務。














免費定製您的專屬解決方案